Iniziati a luglio 2021 i lavori di ristrutturazione di un intero complesso residenziale grazie agli incentivi del SUPER BONUS 110% e SISMA BONUS, infatti l'edificio non si rifarà soltanto il look dal punto di vista estetico ed energetico, ma subirà anche una serie di interventi mirati al consolidamento e rafforzamento della struttura con un adeguamento alle nuove norme in materia di prevenzione degli eventi sismici.
La Struttura:
- 2500 MQ. DI PONTEGGIO
- 6 PIANI
- 23 UNITA IMMOBILIARI
- 540 MQ. DI PANNELLI SOLARI
- 350 MQ. DI INFISSI
Di seguito alcune caratteristiche tecniche delle lavorazioni.

Rinforzo a flessione travi
Il rinforzo a flessione è necessario per elementi strutturali soggetti a momento flettente di calcolo maggiore della corrispondente resistenza. Il rinforzo a flessione mediante materiali compositi è eseguito mediante applicazione di uno o più lamine ovvero uno o più strati di tessuto al lembo teso dell’elemento da rinforzare.

Rinforzo a flessione soletta
Se un solaio presenta carenze di armatura longitudinale a flessione per mutate condizioni di carico (cambio di destinazione d’uso) o per degrado dei materiali (dovuto a umidità, incendio, ecc.) è possibile eseguire un intervento di rinforzo mediante l'uso di lamelle in fibre di carbonio.

Rinforzo muratura portante
Un edificio, per quanto solido possa essere, non può durare in eterno, soprattutto se è soggetto a forti sollecitazioni: i muri portanti, nel tempo, rischiano di cedere o perdere buona parte della loro resistenza meccanica, rendendo più vulnerabile l’intera struttura.

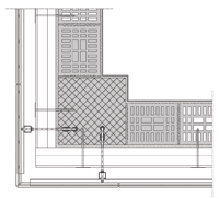
Vista sezione di montaggio parete ventilata
La facciata ventilata è un particolare tipo di rivestimento perimetrale delle pareti che prevede l'applicazione a secco, sulla superficie esterna dell'edificio, di pannelli di opportuno spessore, non strettamente aderenti alla struttura.
